吊頂形式設計
觀眾廳剖面設計取決于兩個因素。一是規范規定的每座容積,它能確定觀眾廳吊頂的大概高度;二是觀眾廳剖面聲線分析,它能確定吊頂的最終形式。結合上述兩個因素,最終確定的吊頂形式如圖9、圖10所示??梢钥闯?,經吊頂反射的聲音能覆蓋觀眾席的所有區域,其分布均勻,能達到良好的聲場效果。


5 觀眾廳表面裝修材料的聲學設計
根據確定的混響時間值,對主劇場觀眾廳進行聲學材料布置,同時遵循室內聲學材料布置原則,確定觀眾廳空間以下部位的材料及構造做法。
(1)觀眾廳地坪及走道
主劇場主體結構采用鋼結構,由于工期問題,觀眾廳樓面基層采用纖維水泥壓力板,基層下采用排布緊密的小鋼柱起支撐作用,為了盡可能減小人員走動產生的振動噪聲,采用兩層共48 mm厚纖維水泥壓力板(單層面密度≥40 kg/m2)、兩層之間鋪設1.2 mm厚隔聲氈作為樓面基層材料。同時,為了避免剛性連接,在鋼柱與地下一層鋼筋混凝土樓面之間布置16 mm厚減振層。觀眾廳地坪材料采用“15 mm厚實木地板+15 mm厚松木毛地板”。為了進一步降低人員走動產生的振動噪聲,在觀眾廳的主要通道(即走道位置)鋪設地毯,具體構造為“10 mm厚阻燃地毯+20 mm厚松木毛地板”。
(2)觀眾廳吊頂
為了保證足夠的反射聲,以及結合吊頂異形造型的需求,吊頂材質采用GRG,建議厚度不低于30 mm,體密度不低于1 800 kg/m3。
(3)觀眾廳側墻前區
該區域需要將聲音反射到觀眾席區域,因此,需采用硬質材料,結合內裝設計方案,此區域采用與吊頂相同的GRG材料。
(4)觀眾廳側墻中區
該區域同樣需進行反射處理,結合內裝設計方案,在此區域布置15 mm厚實木板。
(5)觀眾廳側墻后區、觀眾廳后墻
觀眾廳側墻后區及后墻區域材料需以強吸聲為主,避免產生回聲,結合混響時間設計, 此區域采用木質穿孔板吸聲構造, 具體做法為“15 mm厚穿孔木質板(孔徑3 mm、孔距16 mm)+50 mm厚玻璃棉(容重32 kg/m3)”。其中,側墻區域反射、吸聲材料布置位置參考圖11。

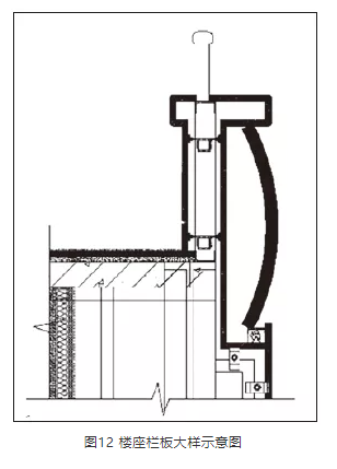
6)樓座欄板
樓座欄板應避免垂直面,做吸聲或擴散處理。根據觀眾廳混響時間控制,以及結合內裝裝飾效果,在欄板部分做弧形擴散處理,大樣示意見圖12。

7)舞臺
舞臺容積27 762 m³,大約是觀眾廳的3倍,混響時間要求與觀眾廳接近。因此,在舞臺工藝專業進行舞臺幕布布置的前提下,對舞臺進行混響時間設計。一層天橋以下采用12.5 mm厚穿孔石膏板,具體構造為“12.5 mm厚穿孔石膏板(穿孔率13.1%,大小眼孔,孔徑12/8)+50 mm厚離心玻璃棉(容重32 kg/m3)+350 mm厚空腔”。為了防止道具等沖撞破壞墻體,建議5 m以下采用容重大于1 150 kg/m3的中密度埃特板、5 m至一層天橋采用12.5 mm厚石膏板,兩種材料構造相同。一層天橋至二層天橋下采用12.5 mm厚石膏板,具體構造為“12.5 mm厚石膏板+400 mm厚空腔”,進一步降低低頻混響時間。吊頂進行無機纖維噴涂,避免聲音經此處反射,產生回聲。
6 計算機模擬分析
混響時間設計完成后, 采用Odeon軟件對聲場環境進行模擬,對方案起到一定的校正作用。觀眾廳各部位吸聲系數見表2,圖13為模擬軟件中三維模型圖,圖14~圖18為各參數的模擬結果,表3為各測點平均值。



.png)
7 測試結果及分析
根據混響時間測量規范,在觀眾廳內共布置17個測點,對主劇場進行空場竣工檢測,各參數檢測結果見表4。
從檢測結果可以看出:
-
空場中頻混響時間平均值為1.67 s,同時考慮工程誤差,在設計要求范圍內;低頻最高為2.04 s,不超出規范規定的限值范圍;中高頻混響時間平直,整個混響時間測試結果較為理想,滿足設計要求。
-
聲壓級檢測結果表明,17個測點的最大聲壓級為77.6 dB,最小聲壓級為73.95 dB,差值為3.65 dB,小于6 dB,說明廳堂內聲壓級分布均勻。
-
音樂明晰度是評價音樂聲是否清晰的參數,所有倍頻程測量結果均大于1 dB,說明觀眾能很好地聽清音樂聲。
-
語言清晰度是評價廳堂語言聲是否清晰的參數,所有倍頻程測量結果均大于0.3,略小于要求的≥0.45,可能是由于空場環境缺少觀眾吸聲造成的。
-
語言傳輸指數同樣是評價語言聲的參數。參數越大,代表觀眾聽到的語言聲越清晰。測點測試結果均值為0.52,表明觀眾廳內清晰度好。
8 結束語
作為寶雞市嶄新的文化地標建筑,寶雞大劇院是寶雞市市民共享文化盛宴的重要場所。本次建筑聲學設計,通過前期的建筑體型設計、混響時間設計、計算機輔助模擬,及后期聲學檢測,表明主劇場混響時間設計達到預期、混響時間特性曲線符合規范、聲場分布均勻、具有一定的豐滿度和清晰度,滿足表演劇種的功能使用要求。有理由相信,未來寶雞大劇院一定能肩負豐富人們精神文化生活的重任,為寶雞市市民帶來美好的視聽體驗。